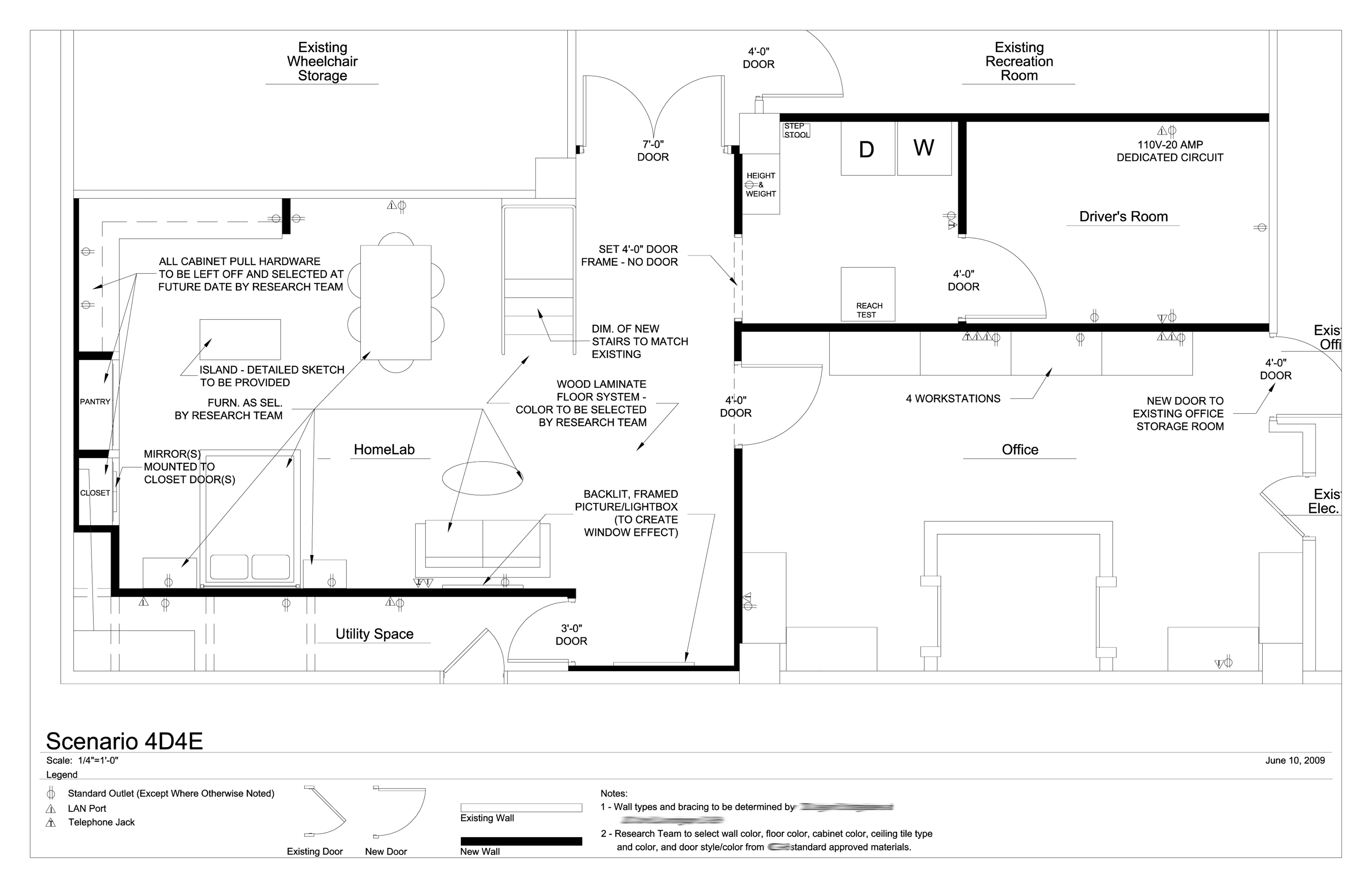
GHS ALU BP-r.dwg Published 2013/02/01 at 5100 × 3300 The final design addressed all program requirements, was a much more efficient use of space, and created opportunities for additional work and storage areas. (FFE, Construction Documents, & Construction Administration by Design Strategies, LLC)